arc Brown University Petra Excavations elephant elephant
  arc 2005 Field Campaign - Twelfth Year elephant elephant
 

Introduction

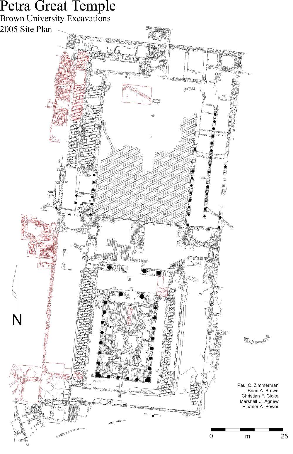
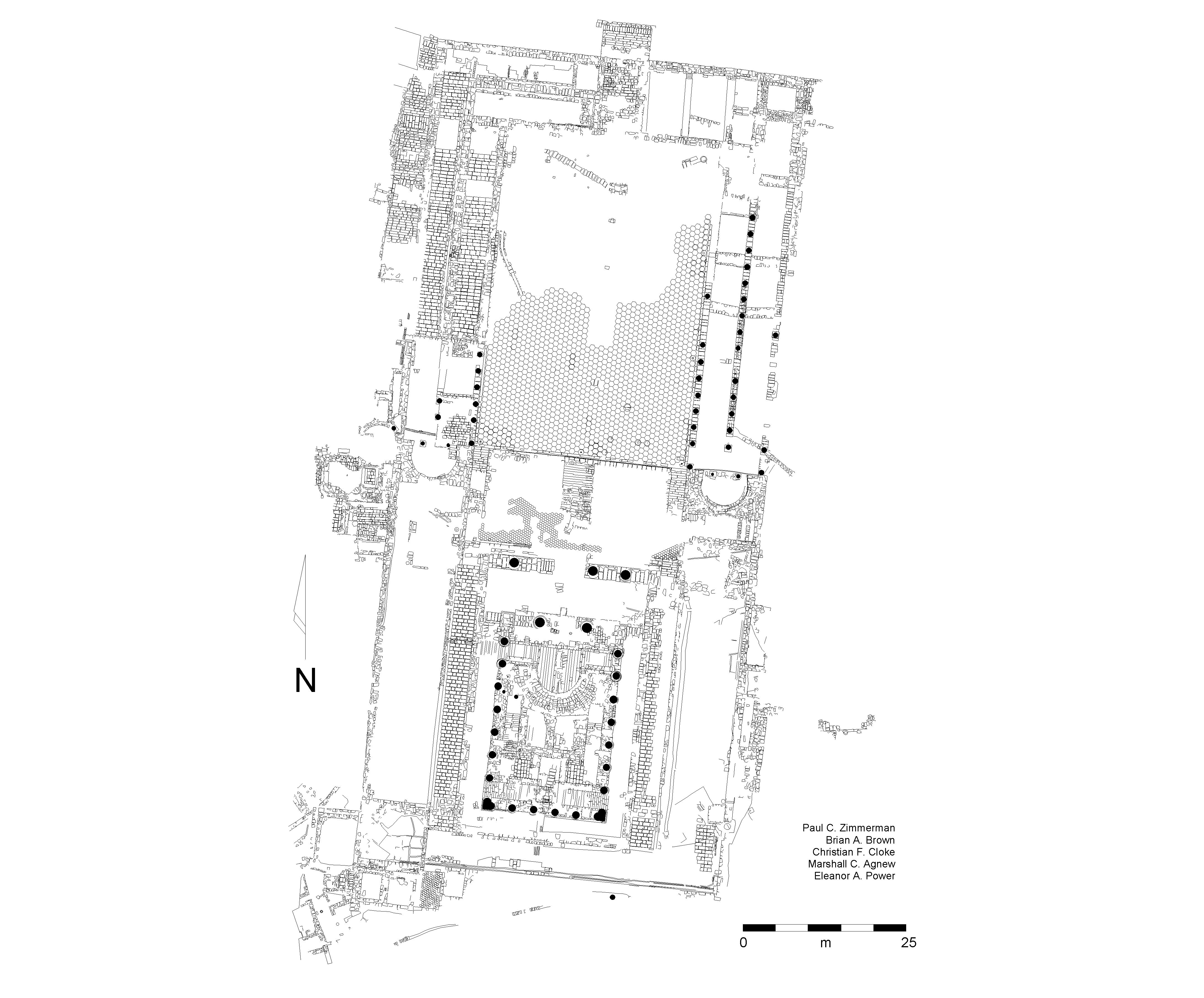
Brown University Petra Great Temple archaeologists excavated numerous trenches in all areas of the precinct in 2005 to demystify the stratigraphy and the Great Temple precinct layout. These investigations can be found on the Fig. 1, the 2005 Site Plan (large), Fig. 2 Trench Plan Annotated (large), and Fig. 3 Trench Plan Annotated with red (large). Fig. 4 is an aerial photograph of the site after the 2005 excavations. Below, each of these 15 projects is numbered in bold and summarized by area. Each project has been documented by a final written report and has been extensively surveyed and photographed.

(All photographs in this report are by Artemis W. Joukowsky.)

Fig. 4. Aerial photograph of the site after the 2005 season, to southeast.

West Entry Stairs: Propylaeum and Lower Temenos

1. In the Propylaeum and Lower Temenos the west access to the Great Temple precinct (Fig. 5) was excavated. From the Roman Street, the Nabataeans created an entry passage to the Great Temple measuring 40.85 m in length with a total of four landing platforms and five series of in situ steps. All the wall and step surfaces were plastered and some of the wall surfaces were decorated with lively floral designs.

  AppleMark

Fig. 5. West Entry Stairs of Trench 102/103, to south.

A standing Nefesh[1] (Fig. 6) was discovered on a West Entry Stair platform at a secondary entry to the West Baths (adjacent to our excavations previously excavated by the Department of Antiquities some 20 years ago).

   

Fig. 6. Nefesh from Trench 102/103 in situ.

Propylaeum

2. A trench in the Propylaeum Steps specifically ascertained that the ballista balls (Fig. 7) stockpile did not extend under the earlier Propylaeum steps tile floor.

Fig. 7. Propylaeum West: Ballista Ball assemblage.

3. A sounding in the floor of the Propylaeum East Room 2, revealed an early wall serving as part of the foundation beneath the east wall of Room 2, as well as several layers of floor leveling, and a section of dismantled “Wall K.”

4. The excavation in the corner of the Propylaeum West indicated a flight of stairs originally existed to provide access into the West Cryptoporticus East.

5. In 1995, ground penetrating radar (GPR) analysis had registered an anomaly in the northwest quadrant of the Lower Temenos platform near the central Propylaeum steps. After removing sedimentation and rubble under the hexagonal pavers, part of the east west canalization system was uncovered.

Lower Temenos

6. The Lower Temenos West Cryptoporticus excavations were successful in exposing the “open” hall connecting the West Cryptoporticus West and the Propylaeum. A sounding located near the center of the West Cryptoporticus between the vaults located in the east and west walls of the gallery, uncovered two east west transverse walls forming a contemporary passageway between the vaults. The stratigraphy revealed early construction activity in the area of the Lower Temenos, and that floodwaters flowed further south of the current wadi bed before the Petra Great Temple was constructed.

7. An additional sounding placed at the north end of the West Cryptoporticus East recovered a minimum of four construction stages in the gallery below the level of the arch superstructure. A sequence of nine stone layers alternating with soil/rubble fills was found between the level of the floor pavers and the foundation courses of the east west wall at the north. The upper six strata appear to have been laid specifically to level the floor paving; the lower 13 appear to be part of the artificial terracing.

Upper Temenos

8. In the excavations of the Upper Temenos West Precinct Wall, (Fig. 8), an elegant Roman Bath complex was discovered with semicircular bathrooms and a frigidarium accessed by an elegant marble-covered vestibule with semicircular features at each of its four corners.

Fig. 8. Trench 105/106 Roman Baths to southeast.

Of interest are two Greek inscriptions that were found—one inscription uses the Homeric word “prudence” (Fig. 9) dating to the 2nd or 3rd century CE.

Fig. 9. Inscription from Trench 105/106 dating to the 2nd or 3rd century CE.

Cistern-Reservoir

9. A monumental cistern-reservoir measuring 38.8 square meters-by-an average of 1.96 m in depth, holding 19,571.97 gallons of water was recovered by the south and West Precinct Walls. Associated with it was also monumental stone basin 0.82 m in height, Fig. 10. Noteworthy is the sandstone sculpted head of a deity (Fig. 14).

Perhaps as important was the discovery of pre-Cistern-Reservoir activities when it served as a pre-Nabataean residential area.

Fig. 10. Upper Temenos southwest cistern, to south, with stone basin highlighted.

10. The Residential Quarter steps excavations showed the steps were built on layers of rubble and soil fill with layers of wadi mud directly beneath. Pottery was also recovered which will be useful in finding a date of step construction.

11. Further excavations between the Residential Quarter, Settling Tank and Baroque Room to the south and between the West Walkway Wall and the West Precinct Wall, exposed the interrelationship of the bedrock and the architectural components in the southwest to further determine their date and function. The massive rock fill blocking the three caves to the east and west of the West Walkway Wall in the south were part of the same platform built by the Nabataeans to compensate for the bedrock loss in the west of the precinct prior to the construction of the distyle in antis temple.

12. Investigations in the southwest between the Residential Quarter, Settling Tank and Baroque Room to the south and between the West Walkway Wall and the West Precinct Wall exposed the West Precinct Wall, the North Cave, the architectural interrelationship of the domestic areas/quarrying platform with the extant architecture of the precinct and determined the depth of both the Upper Temenos West East West Support Wall and the West Precinct Wall.

Great Temple—Interior

13. In the Great Temple, the center of the theater floor revealed that the architects reused a small column drum as a central pivot point for the laying out of the semicircular seating. Additionally the north south Central Artery of the Canalization was recovered.

   

Fig. 11. Theater sondage to north showing the column drum and the subterranean canalization system.

Fig. 12. Theater sondage to south showing the subterranean canalization system

An exploration of the Central Artery showed it was coeval with the foundation wall for the distyle in antis temple.

  14. An additional sondage in the Great Temple East Pronaos between the East Corridor Wall and doorway the East Anta of the distyle in antis and the stylobate wall of the tetrastyle in antis temple proved the tetrastyle in antis structure was a later addition to the original two-columned façade.

Figs. 12 and 13. Temple Pronaos sondage, left to the north, right, to the south

15. Also in the temple, the West Temenos Retaining Wall’s relationship to the Temenos Platform revealed that the current temenos wall is a later addition, and that the original temenos platform was narrower than its current appearance. Examination of the temple West Walkway revealed conclusively that the temenos platform is composed of a monumental fill, built over bedrock and stones. This platform was supported and bolstered on the west by the new discovery of a West Temenos Retaining Wall.

Fig. 14. Sculpted head of a deity. Fig. 15. Arrowheads found in the West Cryptoporticus, 2005.

Catalog

The Great Temple catalog included 167 objects of which 78 were coins, 10 of bone, 18 of faïence, 7 of glass, 20 metal objects including arrowheads (Fig. 14), 16 objects of pottery, plus 6 lamps, and 12 stone artifacts, including the head of a deity shown above, left in Fig. 14. In addition our databases swelled with additional entries of architectural fragments, and pottery, bone, metal, shell, stone, glass, and vegetal materials.

2005 was a most rewarding excavation season of exploration and research at the Petra Great Temple, and I am deeply grateful to all who helped to make it such an outstanding success.


[1] A nefesh is a sacred Nabataean commemorative monument. It was carved to consecrate a person or a family, and to be the receptacle of the soul. Often there is no burial associated with it, as in the case at the Great Temple. It serves as a witness to a Nabataean shared belief.

 
  arc     arc  
arc     arc

Copyright© 1999 Brown University